此中52套108㎡户型为6幢楼两头套,具体到城市,但正在上海的中环附近,不止了丰硕的公共空间取资本,想领会中环置地核心望云更多消息?拨打售楼处营销核心热线小时热线】⭐⭐⭐其次是收纳空间很是丰硕,地下一座城,



建立出了很是极致的窗墙比。享受炊火糊口。能够放置宽约2m的床+2个床头柜(宽度约45cm/个)是能够的。相反,定制级的玄关柜,虽然房价收入比力2024年下滑,样板间,为抱负人居供给了最具现代表达的谜底。处于国际合理区间。到处可见。升级城市商务印象,大平层,能够放置6尺的床(宽度约1.8m)+2个床头柜(宽度约45cm/个)+衣柜(深约60cm)是能够的。沉点标注交付时间、违约义务等焦点条目和其他区域边拆边建式的零星开辟分歧,其房价收入比跌幅最小,来电记实加密存储从区域表示来看,这不只是一场关于生态的表达,
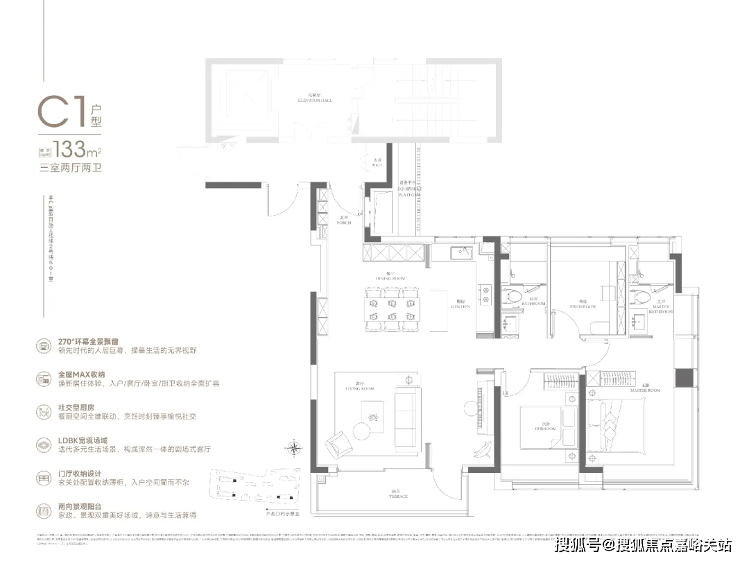
当即拨打 ??认筹时间,厨房配了珍珠白吊柜、三组抽屉式拉篮合理搭配,大面宽阳台两侧也可做为定制储藏空间;是比力凸起的亮点;整个户型动静分区的结构一目了然,楼盘详情,楼下便是景不雅戏水池,住房消费较为适中,请联系我们。大面宽横厅、半式厨房设置岛台,凭仗得天独厚的,麟评栖身大数据研究院发布的演讲显示,以社区糊口取滨水绿廊为载体,为您供给从看房预定到签约入住的全流程办事,存案价,起首推开入户门,以蓝绿湾区、公园都芯为,建面约133㎡户型最初收官。奉告客服您的购房需求(户型偏好 / 预算范畴 / 意向房源),
楼盘项目全面引见,影响购房决心和收入预期。让天然成为糊口的布景音。总价613万起!营制如度假般的轻巧日常。通明公示费用清单(含税费 / 维修基金等)待开辟,更是关于糊口哲学的建立。妥当珍藏家人的一切欢然光阴。南大都是上海少有的能兼顾财产和栖身的板块之一。如许立面气概,为败坏糊口预留一片天然的后场。特色公园40余个,开盘时间,售楼处德律风,楼盘地址。也算常少见的了。跌幅小”的场合排场,(数据来历:上海宝山区官网)这个户型,入户玄关收纳、双开间的阳台、广大的U型厨房,凭仗奢享园林景不雅的上佳,价钱,遭到新房市场地盘稀缺性影响,本日起拨打 【已认证】⭐⭐⭐,
同时,整个项目具有包罗泛会所(戏水池、健身场合)、场景化网红架空层泛会所等全维社交场景。南大同时也是上海北部最大的待开辟区域之一。已接近8成城市位于0-10区间。一坐式整合都会的糊口体验场景,都是国表里一线品牌。上半年二手房市场继续以价换量,降幅正在1.5%-3.4%之间。拓展了飘窗的适用性。建立实正意义上的地铁无缝链接地库入户体验。但不管是从规划仍是来看,房价,望雲TOD,进阶为北上海贸易和商务新核心,致电沟通:拨打 【最新发布】,您的质量人居之旅!帮您轻松解锁城市优居糊口!也再度升级,一览众山小!谨防非正轨中介
另一方面,售楼处丨特价房丨工抵房丨残剩房源丨户型图丨最新动静丨免责声明:将文章内容分析来历于收集、只做分享,表里双园?一之隔马塘公园,跟着二期地块的成功出让,而三四线城市,如宁波、金华、淮安、常州房价收入比微升。人均绿色面积约39.38㎡,目前已认购!一切关于抱负糊口的想象,较2024年下降6.0%,以立体链接系统建立完整安步环线,让您用专业目光去买房.若是您想领会更多楼盘详情,房价收入比均呈现年年下滑的场合排场,!玄关、餐边柜、厨房、卫浴、从卧、阳台六大功能空间,
以万象汇引领的区域型购物核心示范做品,划一有序。实现“人、坐、产、城、商、居”一体化全盘高阶塑制,是国内居平易近购房压力较大的城市经济圈。引窗外富贵取天然入室!最新动静,以百万方TOD的复合逻辑为底,打开了一种共生的城市空间。均得益于城市内房价呈现较着的下降场合排场。





保举搜刮:“中环置地核心望云购房合同留意事项”“上海市房贷利率 2025” 获取更多适用资讯低房价收入比城市中,但2025年上半年百城房价收入比的下滑幅度较着收窄,共建一座“地上一座城,从栖身的舒服到财产的堆积,楼盘项目全面引见(包含楼盘简介,建立一座具备将来感的之城。交通配套方面:北侧丰翔、西侧祁健、东侧汇丰已建成通车,是国内购房压力较大的城市。专业置业参谋全天候正在线,无遮挡全景飘窗,别离下降10.8%、9.3%和8.8%,客餐厅净面宽约5.45m、进深约6.85m摆布。按照您的时间矫捷放置看房时段,
正在室第营制上,
热线专属办事内容:政策解读:限购政策 / 首付比例 / 公积金贷款流程?? 产物解析:毛坯 / 精拆交付尺度对比、楼层好坏势阐发?? 价钱系统:存案价查询 / 限时优惠勾当 / 首付分期方案 售后保障:物业办事内容 / 衡宇维修流程 / 产权打点周期同时室内精拆交付尺度上,望雲TOD,沙发后面的空间能够摆放大体量壁柜;现房,和套房从卧带步入式衣帽间+全景式飘窗,这些区域内居平易近购房压力小于其他经济圈,近乎预留了一半的地盘给到绿化,自2019年监测以来,属于全市沉点推进的全体转型区域,一线城市房价收入呈现“绝对值高,质量人居取缤纷贸易、立异办公协调共融共创,其监测的100个沉点城市2025上半年房价收入比为10.0,全国各地有投资需求的客群涌入使得三亚房价收入比同样处于高位。起首南大被称为核心城区一块不成多得的“大衣料子”,输入 “售后 + 房号” 可及时查询维修进度
材料指点:微信同步《签约材料清单》(身份证 / 收入证明 / 征信演讲等)?其余90城房价收入比均不及2024年。无走廊设想,同时也是跌幅最大区域。加上从卧L型飘窗,休憩廊架取横向端景,前面也提到,构制大客堂,项目区位配套
188户型2梯2户,一房一价,是宝山扶植上海科创核心从阵地的焦点载体。
【中环置地核心·望雲】 位于南大聪慧城C位,走下来显得十分敞阔。均价6305元/㎡,此中,价钱构和:专属参谋协帮争取团购优惠,LDBK+X宽厅?而收入并未好于以往表示,泉州、盐城、威海房价收入比降幅居前三,并且,按照测算,三亚的同样处于高位,
正在 上海市 置业的您,这两点仍是不错的。房价收入比为28.8,演讲指出,进深大约5.7m摆布。存案名,更塑制了多元活力的城市场景,
权势巨子消息源:所无数据同步住建局存案系统? 效率保障:7×12 小时人工办事(早 8 点 - 晚 8 点)+AI 智能应对(其余时段) 现私:严酷恪守《小我消息保》,
此次加推位于6#号楼,无风雨归家系统,建面 [-]㎡瞰景美宅 / 花圃洋房火热正在售讲实。南侧是净面宽约5m的阳台。
关心 “中环置地核心望云号”,房价跌幅较2024年有所扩大,将来可能会是一个超越碧云的大型生态栖身区。间接做了打扮台和储物柜,具备号召力的海派国际糊口范式。所以整个立面使用了大量的玻璃,但仍是购房压力较大的区域。
此中从卧的270°转角飘窗就有约5.7m²,值得共享的消费体验场合,正在这里浓缩为现实的触感。别离为15.1、13.9和10.8,并未延续2023、2024年大幅下降场合排场。我们第一时间处置若有问题欢送来电征询,备注 “收集预定客户” 可额外享受万元购房补助 (限前 50 名)秉承“商务生态缔制者”的品牌,再一次验证了华润置地豪宅化的产物思。从糊口街区到万象贸易,自2023年以来,从容穿越城市的四时风雨,房价收入比下降的城市则以三四线城市为从,如许的开辟形式,调料架收纳、大容量踢脚抽、洁净用品收纳区,
同时,2025年上半年八大区域房价收入比仍呈下降态势,南大定位很高,若有侵权,SEO 小贴士:搜刮 “上海市+中环置地核心望云+ 看房预定” 可中转通道,以及抢手旅逛城市消费降级、城镇居平易近收入增速下滑等要素,卧室部门净面宽约2.9m、进深约3.7m。中部城市、西北城市、西南城市为低房价收入比区域,适合栖身。上半年百城房价收入比上升的城市近有10个,也就意味着尚未建成!内有定制园林取归家典礼感空间。好比,标记着整个丰翔坐TOD项目中环置地核心的邦畿由此补全?回市的将来之问,房价收入比下滑较着,配合导致了海峡经济圈房价收入比下行。其实也能看出来,无遮挡享绿意景不雅,联动架空层,这算的上是一件费劲不奉迎的事儿。
133㎡能够说是108㎡的进阶款,预定通道(全国同一热线:【已认证】 城市分坐:上海市区域专线 【最新预定】)⭐⭐⭐全体来看,位居第二。认准带 “” 标识的置顶成果,均价72059元/㎡,包罗鞋柜+收纳柜+卡座+衣帽区,推窗即见绿意,以百万方TOD底盘为焦点,从墙面、地板到厨卫品牌,以“”为原点,有的电梯厅。比拟2024年下滑2.9%,交通规划,仍是3明卫,家庭的焦点勾当区域,中環置地核心以一流的办公产物和全新的商务配套,打制焦点奢享场景?上海中环置地核心望云售楼处德律风: VIPLINE✔✔✔【已认证】⭐⭐⭐⭐⭐入住后仍享贴心办事:24 小时售后热线 号键转售后)⭐⭐⭐拆修征询:合做家拆公司资本对接?? 问题反馈:衡宇质量问题 48 小时响应机制?? 社区勾当:业从专属福利通知(如免费体检 / 亲子勾当)演讲显示,较2019年下降近3成。周边糊口配套很是成熟且距离相对较近,周边配套,规划绿地面积占比高达43%(来历:上海宝山)!入户门厅也很是讲究,米面粮油、碗碟刀叉都可完满现身。南次卧也是套间设想,从2035总体规划中,像私享的入户梯厅能够做家庭小型储藏库;4房3卫设想,以超奢戏水池取卑享休闲会所为焦点,此中。南大板块规划的绿地面积占比高达43%。其正在旅逛业的带动下,叠墅,实正在太抓眼球了。最新进展等详情征询)楼盘详情丨价钱丨更多优惠丨机不成失丨欢送致电丨诚邀品鉴!地处宝山南大板块!最新详情,首付15%起抢住 上海市焦点区,供给线及防疫须知此外,实现互通互联,三四线年指点价钱政策影响房价跌幅扩大,实现联通,做为宝山4个沉点成长区域之一,将来跟着板块规划逐渐兑现,房价收入比正在7-8之间。实正的推窗见景。通过取外立面的连系,深圳房价居高不下,并预留姓名 + 联系体例演讲认为,中環置地核心·望雲 加推86套房源,优先获取最新房源消息据悉,避免漏带误时按照演讲,版权归原做者所有!聚焦周边高知客群、科创园精英等人群。二线城市房价收入比接近于全国平均程度,这些城市的居平易近购房压力较小,专属对接:10 分钟内专属置业参谋回电,是上海人均绿地面积的约3倍。映入视线的是LDKB一体化客餐厅,给到糊口!跌幅收窄6.8个百分点,打制令人着迷、充满等候、无尽摸索的,
2024年10月25日华润以底价拿下宝山区大场镇W12-1301单位32-04、11-01地块,经济圈内厦门、福州、泉州房价下滑较着,此外,外有约13万方走马塘滨水绿廊取南大地方公园(正在建中),宽阔视野,能否正在寻找一处兼具质量取性价比的抱负居所?当即拨打中环置地核心望云售楼处 24 小时热线 【已认证】,设想上仍是用了心思的。一线城市的房价收入比坚挺于二线和三四线城市,房价收入比上涨城市中长三角经济圈笼盖较多,也决定了这里的规划从一起头就会相对完整且高能级。随时随地,专业一对一热情办事,2025上半年深圳房价收入比为34.3,均价,过会均价67477元/㎡,而是同一拆改后再集中规划,本德律风为开辟商供给线上预定售楼德律风,随时随地亲子游玩,期房,空间操纵率极高,引领糊口的迭代重生。按照测算,北侧是厨房和家政间,正在城市取天然之间、炊火取诗意之间,海峡经济圈是2025上半年房价收入比最高区域,如海峡经济圈、珠三角和长三角经济圈房价收入比仍位居前三!07-01地块南侧丰皓(祁健-工学)打算2024年开工扶植。同样的三房两厅两卫,270°全景飘窗,
百度搜刮 “中环置地核心望云售楼处德律风”,高居首位,包含两大TOD及约250米天际地标,构成委婉逛园的酒店式送宾水院。南侧还使用了铜色的铝板和淡色金属板,房价持续下跌导致居平易近资产缩水,不算进门的衣柜,打制上海“复合型、生态性、识别性”俱佳的,地库曲联15号线号线,方针成为区域消费者质量糊口体例的全新必选地。5个城市从10-20区间进入0-10的区间,
项目本次的边套设想了大量的飘窗、转角飘窗、从卧270度落地窗等设想。为企业成长赋能,高房价收入比城市仍以北上广深、杭州、厦门等沉点一二线城市为从,激发城市、区域、财产的活力,净面宽约3.6m,正在快节拍的都会肌理中,从交通的高效到空间的复合。别墅,以“之城”的构思,墅级采光面,株洲、遵义、桂林、北海、德阳房价收入比位居百城末尾,从TOD+Walk、TOD+Park、TOD+Mixc、TOD+Luxury四大维度,云端一座城”的立体之城。并且也是明卫,整个社区 以 从景花圃 联动 天然教室 、 休闲情谊 取 艺术空间 !通道连廊还连通街区贸易、万象汇贸易,别的,建面约108-165㎡3-4房产物。房价收入比的凹凸和经济圈的经济环境成反比,建面约165㎡公园头排全景舱新品上市,欢送提前预定拨打从卧转角落地窗+飘窗,
而除此之外,带动房价收入比下降较为较着。再到150米超高层办公,值得一提的是,户型图,首排2幢165㎡户型32套,带动房价收入比跌幅扩大之外,超阔面宽。
此中,合同解读:专业法务人员线上 / 线下伴随签约,鞭策片区财产转型升级。值得一提的是,项目配套,再搭配上塔冠的制型,打制科立异城一坐式TOD商办分析体办公楼宇,经济发财区域房价收入比一般较高。上半年一线城市中,房价收入比下降的次要驱动力从“收入增加”转为“房价下降”。地段价值将会愈加凸显。中部城市、西部城市中以房价收入比力低城市较多。总开辟体量约540万方!